Кабинет
Новостройки
Новости
Аналитика
Мнения о ЖК
Заметки о рынке
Дизайн
Кабинет
Дизайнерские решения
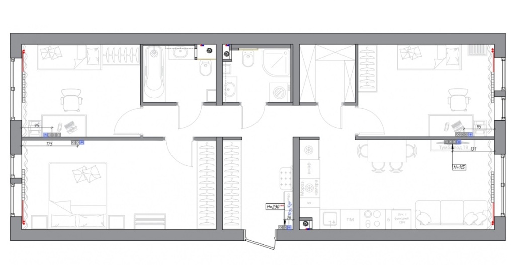
Дизайн - проект 3-к.кв. 80 м2
Автор проекта -
remplanner
Дизайн интерьера квартиры в Люберцы парк
Все проекты
АКЦИИ, СКИДКИ, СТАРТ ПРОДАЖ
ЮТУ
Старт продаж на набережной
Левел Войковская
Старт продаж бизнес-класса на Войковской
Солос
Бизнес-класс у парка Сокольники
Айс Тауэрс
Старт продаж в ЮЗАО
Родина Переделкино
Старт продаж в Переделкино
МАРК
Премиальный ЖК у воды. Старт продаж.
МИРА
Старт продаж премиум-класса на ВДНХ
Северный Порт
Бизнес-класс у воды. Старт продаж
Rakurs
Старт продаж на Октябрьском поле
Дрим РИВА
Старт продаж у воды
PAVE
Старт продаж на Павелецкой
HideOUT
Старт продаж премиум класса в ЗАО
SET
Старт продаж в ЗАО от 10,6 млн.р.
VEER
Старт продаж в ЗАО
Sky Garden
Бизнес класс на супер условиях
NOVA
Старт продаж. Премиальный проект в ЗАО
Квартал Западный
Скидки до 5% на квартиры с отделкой
Shagal
Скидки до 25%